OFF-GRID, Brief + PROJECTS FOR Interior Architecture Y3






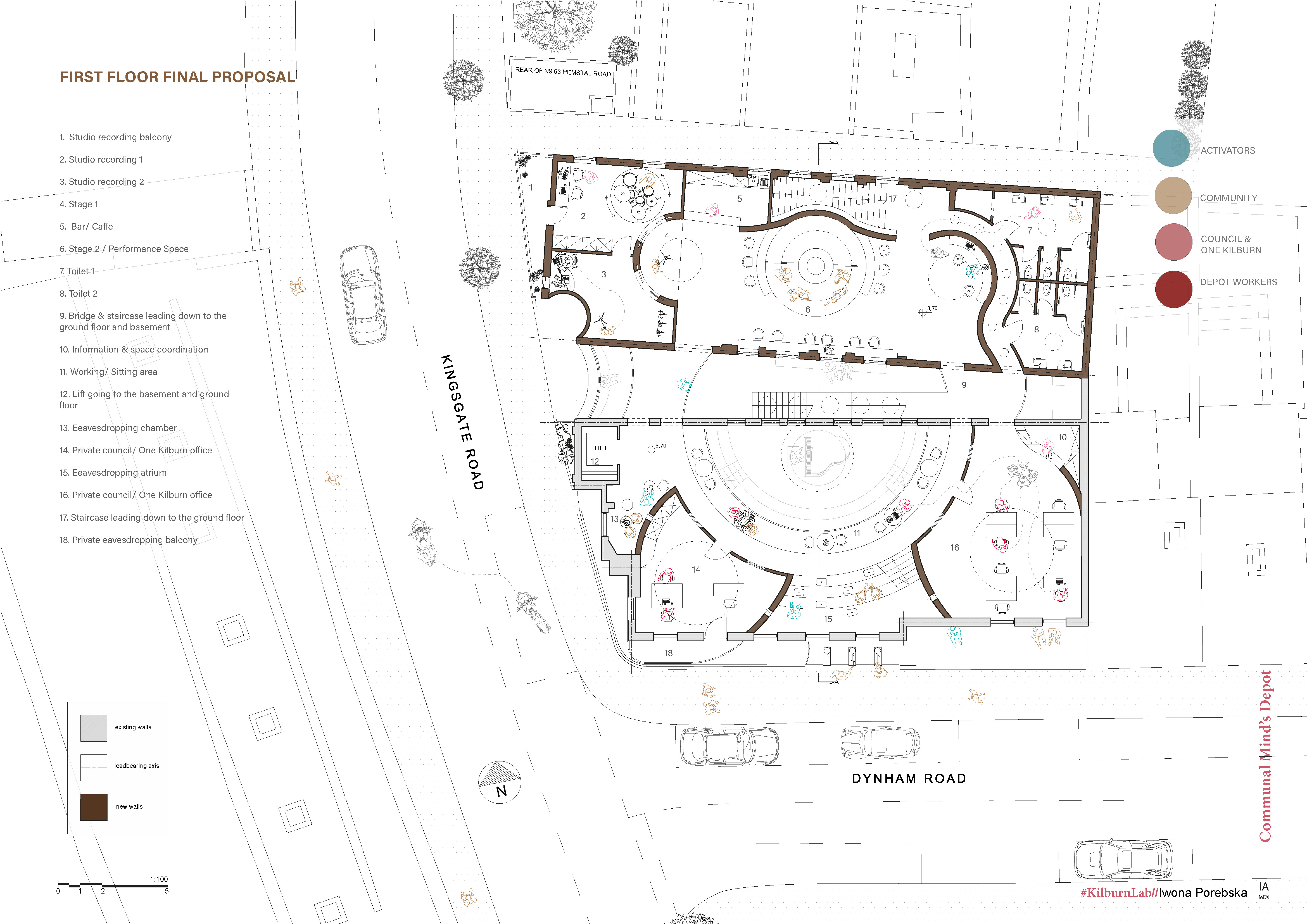
Y3 Ba(Hons) Interior Architecture and Ma Interiors [Architecture + Design] briefs are focusing on the area of Kilburn and, specifically, on the building at 107 Kingsgate Road which is a former Community Center that has been closed for the few past years.
Kilburn is a very interesting area, multi-ethnic and rich in history - is currently undergoing different regeneration projects that will affect its character.
The building at 107 Kingsgate Road is owned by Camden Council which is currently exploring what a ‘community centre’ means in the future, what it should encompass, who should be addressed to and how will it sustain itself.
Find on this page
*the brief OFF-GRID for Interior Architecture Y3 students
*projects for 107 Kingsgate
Find on the page
![]()
Kilburn is a very interesting area, multi-ethnic and rich in history - is currently undergoing different regeneration projects that will affect its character.
The building at 107 Kingsgate Road is owned by Camden Council which is currently exploring what a ‘community centre’ means in the future, what it should encompass, who should be addressed to and how will it sustain itself.
Find on this page
*the brief OFF-GRID for Interior Architecture Y3 students
*projects for 107 Kingsgate
Find on the page

























